Keller Williams Realty - 503-664-9825
SOLD! MLS: 24614546 $359,000
2 Bedrooms with 3 Baths318 NE EDGEWAY DR
HILLSBORO OR 97006MLS: 24614546
Status: SOLD
Closed On: 2025-03-14
Sold Price: $359,000
Sold Price per SqFt: $261
Square Footage: 13762 Bedrooms
3 Baths
Year Built: 2010
Zip Code: 97006
Listing Remarks
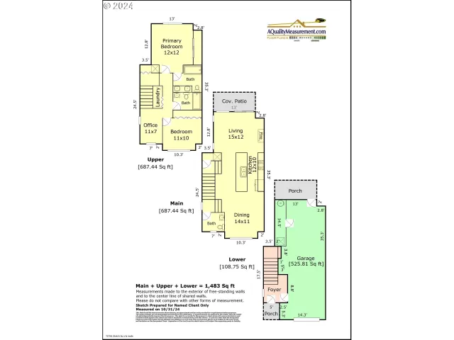
Location! Location! Move-in ready with fresh interior paint, newer high quality carpet/pad, new windows, newer furnace and A/C, new microwave, dishwasher and refrigerator! Fabulous end unit which brings extra space and extra light with the extra end unit windows! Living room with gas fireplace and sunset views from the SW facing balcony. Large open kitchen with eating bar, separate dining room, guest bath on main floor, upper floor loft / office, 1 bedroom with dedicated bath and primary bedroom suite with sunset views. Tuck under tandem double deep oversize garage, with mechanical / storage room and door to covered patio on street side of the townhome. Parking in driveway and off street guest parking. Easy commute to grocery shopping, restaurants, theater, Tanasbourne Town Center and Tanasbourne Village, Whole Foods, Kaiser West hospital, Streets of Tanasbourne shops,... minutes to light rail, Hwy 26, Intel and Nike and very convenient by foot or vehicle to Willow Creek lightrail station! [Home Energy Score = 8. HES Report at https://rpt.greenbuildingregistry.com/hes/OR10234021]
Address: 318 NE EDGEWAY DR HILLSBORO OR 97006
Listing Courtesy of Earnest Real Estate 503-330-7400
Condo Mania Agent
Michele DesCombes
Keller Williams Professionals
Real Estate Agent - #201204624
Phone: 503-974-1444
Request More Information
Listing Details
STATUS: Closed LISTING CONTRACT DATE: 2025-01-08 CLOSE DATE: 2025-03-14 BEDROOMS: 2 BATHROOMS FULL: 2 BUILDING AREA TOTAL: 1376 YEAR BUILT: 2010 TAXES: $4,081 HOA FEES FREQUENCY: Monthly HOA FEES: $467 HOA AMENITIES: Commons, ExteriorMaintenance, Insurance, MaintenanceGrounds, Management, Sewer, Water APPLIANCES INCLUDED: Dishwasher, Disposal, FreeStandingGasRange, FreeStandingRefrigerator, Granite, Microwave, PlumbedForIceMaker, StainlessSteelAppliance, Tile ARCHITECTURAL STYLE: Townhouse EXTERIOR FEATURES: CoveredPatio, Deck FIREPLACE: Gas HEATING: ForcedAir95Plus COOLING: CentralAir INTERIOR FEATURES: GarageDoorOpener, Granite, HighSpeedInternet, LaminateFlooring, Laundry, VinylFloor, WalltoWallCarpet, WasherDryer LEGAL DESCRIPTION: VILLAS AT AUTUMN CREEK CONDO, LOT 59-1 LOT FEATURES: Commons, Level, OnBusline # GARAGE SPACES: 2 PARKING FEATURES: Driveway, OffStreet PROPERTY TYPE: Residential PROPERTY SUB TYPE: Condominium ROOF: Composition STORIES TOTAL: 3 LISTING AGENT: BETH EARNEST LISTING OFFICE: EARNEST REAL ESTATE
Property Location: 318 NE EDGEWAY DR HILLSBORO OR 97006
This Listing
Active Listings Nearby
You Might Also Be Interested In...
The Fair Housing Act prohibits discrimination in housing based on color, race, religion, national origin, sex, familial status, or disability.
Some properties which appear for sale on this web site may subsequently have sold or may no longer be available.
The content relating to real estate for sale on this web site comes in part from the IDX program of the RMLS™ of Portland, Oregon. All real estate listings are marked with the RMLS™ logo, and detailed information about these properties includes the names of the listing brokers.
Listing content is © 2026 RMLS™, Portland, Oregon.
Information Deemed Reliable But Not Guaranteed. The information being provided is for consumer's personal, non-commercial use and may not be used for any purpose other than to identify prospective properties consumers may be interested in purchasing. This information, including square footage, while not guaranteed, has been acquired from sources believed to be reliable.
Last Updated: 2026-05-14 19:40:13
Portland Condo Mania






