Keller Williams Realty - 503-664-9825
SOLD! MLS: 21287976 $355,900
2 Bedrooms with 3 Baths1906 NE 48TH WAY
HILLSBORO OR 97124MLS: 21287976
Status: SOLD
Closed On: 2021-02-22
Sold Price: $355,900
Sold Price per SqFt: $203
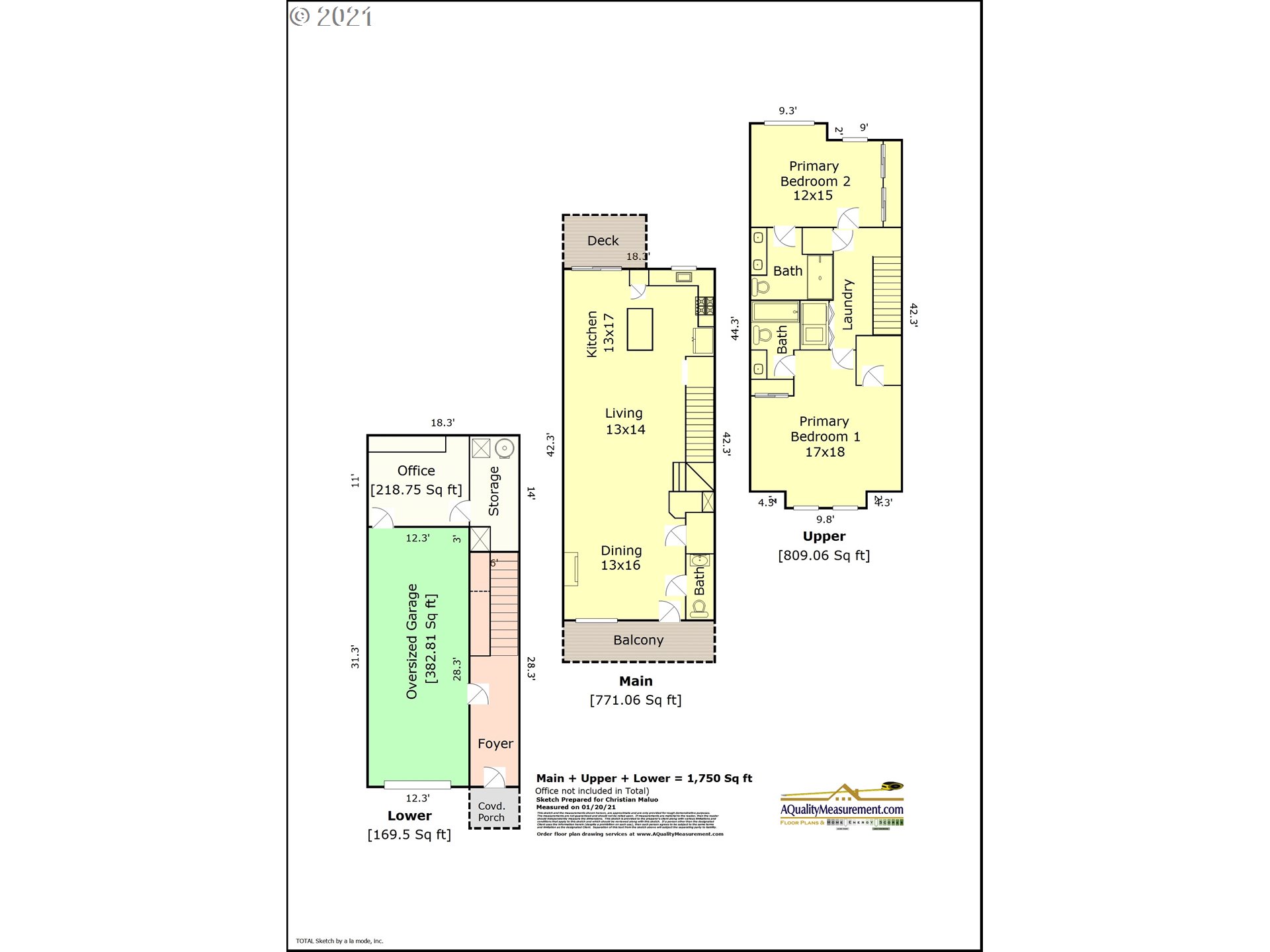
Square Footage: 17502 Bedrooms
3 Baths
Year Built: 2007
Zip Code: 97124
Listing Remarks
Gorgeous move-in ready townhouse style condo. Open, great-room floorplan with island kitchen featuring stainless steel appliances, gas range and quartz countertops. Two primary bedroom suites with vaulted ceilings & dedicated baths. You'll love the bamboo floors, two outdoor spaces & central AC. Ground level features attached garage with two car tandem parking, flexible office space + storage room. All appliances included. Conveniently located near Intel, Costco, the library, shopping & parks.
Address: 1906 NE 48TH WAY HILLSBORO OR 97124
Listing Courtesy of Where, Inc 503-222-4373
Condo Mania Agent
Michele DesCombes
Keller Williams Professionals
Real Estate Agent - #201204624
Phone: 503-974-1444
Request More Information
Listing Details
STATUS: Closed LISTING CONTRACT DATE: 2021-01-22 CLOSE DATE: 2021-02-22 BEDROOMS: 2 BATHROOMS FULL: 2 BUILDING AREA TOTAL: 1750 YEAR BUILT: 2007 TAXES: $3,201 HOA FEES FREQUENCY: Monthly HOA FEES: $275 HOA AMENITIES: Commons, ExteriorMaintenance, Insurance, MaintenanceGrounds, Management, RoadMaintenance APPLIANCES INCLUDED: Dishwasher, FreeStandingGasRange, FreeStandingRefrigerator, Island, Microwave, PlumbedForIceMaker, Quartz, StainlessSteelAppliance ARCHITECTURAL STYLE: Townhouse EXTERIOR FEATURES: Deck, Porch FIREPLACE: Electric HEATING: ForcedAir COOLING: CentralAir INTERIOR FEATURES: BambooFloor, CeilingFan, Quartz, VaultedCeiling, WalltoWallCarpet, WasherDryer LEGAL DESCRIPTION: TRAVERTINE CONDO SUPP NO. 2: ANNEX STG 3, LOT 10B, INTEREST IN COM LOT FEATURES: Level # GARAGE SPACES: 2 PARKING FEATURES: Other PROPERTY TYPE: Residential PROPERTY SUB TYPE: Condominium ROOF: Composition STORIES TOTAL: 3 LISTING AGENT: CHRISTIAN MALUO LISTING OFFICE: WHERE, INC
Property Location: 1906 NE 48TH WAY HILLSBORO OR 97124
This Listing
Active Listings Nearby
You Might Also Be Interested In...
The Fair Housing Act prohibits discrimination in housing based on color, race, religion, national origin, sex, familial status, or disability.
Some properties which appear for sale on this web site may subsequently have sold or may no longer be available.
The content relating to real estate for sale on this web site comes in part from the IDX program of the RMLS™ of Portland, Oregon. All real estate listings are marked with the RMLS™ logo, and detailed information about these properties includes the names of the listing brokers.
Listing content is © 2026 RMLS™, Portland, Oregon.
Information Deemed Reliable But Not Guaranteed. The information being provided is for consumer's personal, non-commercial use and may not be used for any purpose other than to identify prospective properties consumers may be interested in purchasing. This information, including square footage, while not guaranteed, has been acquired from sources believed to be reliable.
Last Updated: 2026-05-06 19:40:02
Portland Condo Mania






