Keller Williams Realty - 503-664-9825

MLS: 646510539     $399,900     3 Beds /3 Baths

MLS #:646510539
Status:ACTIVE
List Price:$399,900
Price SQFT:$252
City: GLADSTONE
Beds:3
Baths:3
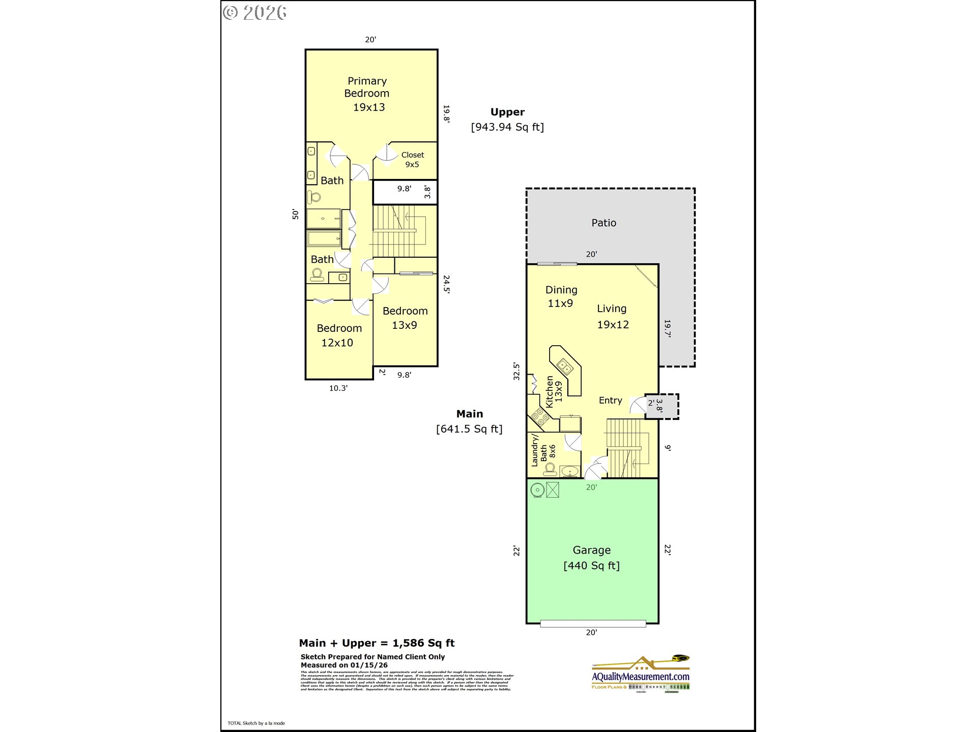
SqFt:1586
Year:1999
Zip:97027

 

Listing Remarks

Easy proximity to Downtown Gladstone, Gladstone schools, newer HVAC & roof, quiet culdesac, 2 car garage, and an ideal floor plan & ensuite - this one has it all! The open living, dining, and kitchen sweep you into the main level before flowing easily onto the fully fenced backyard patio, perfect for outdoor evening meals. Upstairs features 3 BD and 2 BA, including an expansive primary suite with vaulted ceilings, an attached bathroom, and a walk-in closet. Fully move-in ready with a 5 year old furnace, 2 year old central AC, fresh interior paint, and 4 year old roof across the complex. With a Walkscore of 73 and a Bikescore of 82, this location lets you make Gladstone your own private enclave, and the 2 car garage and full driveway mean you'll always have space for vehicles if you need to make a longer trip. Detached home living at condo prices!

Address: 162 ALLI CT GLADSTONE OR 97027

MLS Logo  Listing Courtesy of Windermere Realty Trust 503-233-7777

Listing Photos


Logo for Fair Housing ActThe Fair Housing Act prohibits discrimination in housing based on color, race, religion, national origin, sex, familial status, or disability.

Some properties which appear for sale on this web site may subsequently have sold or may no longer be available.

The content relating to real estate for sale on this web site comes in part from the IDX program of the RMLS™ of Portland, Oregon. All real estate listings are marked with the RMLS™ logo, and detailed information about these properties includes the names of the listing brokers.

Listing content is © 2026 RMLS™, Portland, Oregon.

RMLS Logo

Information Deemed Reliable But Not Guaranteed. The information being provided is for consumer's personal, non-commercial use and may not be used for any purpose other than to identify prospective properties consumers may be interested in purchasing. This information, including square footage, while not guaranteed, has been acquired from sources believed to be reliable.

Last Updated: 2026-01-23 03:57:35