Keller Williams Realty - 503-664-9825

Community: MADISON HEIGHTS ... Listing 3 of 4
First -- Next -- Previous -- Last

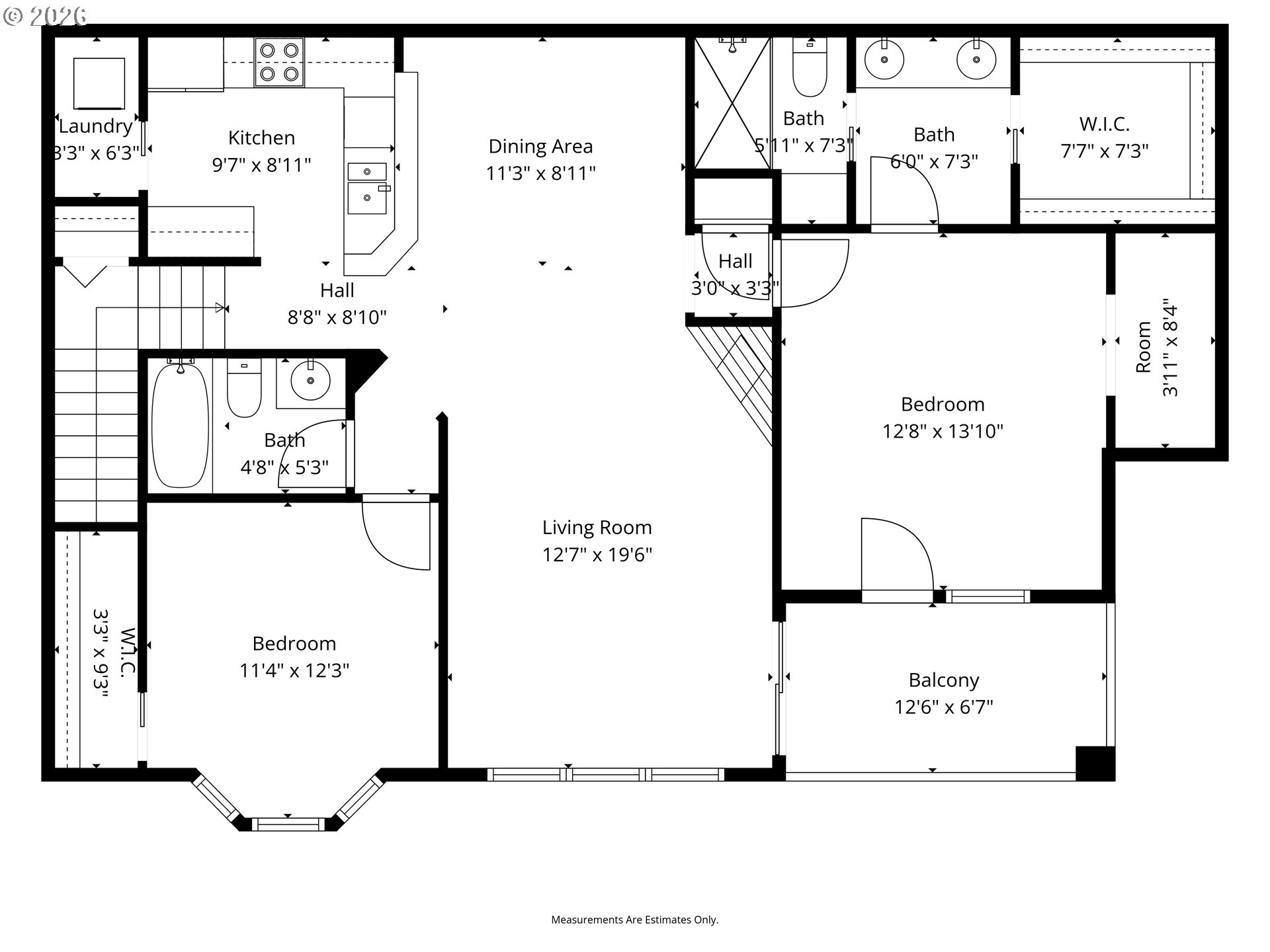
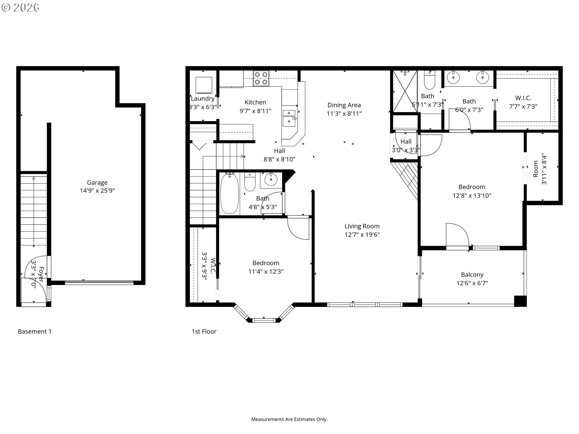
MLS: 561882858     $419,900     2 Beds /2 Baths

MLS #:561882858
Status:ACTIVE
List Price:$419,900
Price SQFT:$354
City: WEST LINN
Beds:2
Baths:2
SqFt:1186
Year:2003
Zip:97068

 

Listing Remarks

Bathed in natural light, this beautiful property sets the stage for a life of ease and elegance. The wall of Southwest-facing windows transforms the entire home with bright, embracing light while remaining cozy and welcoming. The large kitchen, dining and living area make it easy to entertain comfortably and graciously. Enjoy morning coffee and evening sunsets on the spacious balcony, leave the door of the primary suite open on summer evenings to enjoy the gentle, floral scented breeze. Situated in the prime neighborhood of Madison Heights, Summerlinn’s pride, this location brings the peace and supreme quiet of being closest to the rolling hills and wildlife.The lovely community of Madison Heights features access to a nearby pond and waterfall, an ideal place for quiet contemplation and renewal. This brilliantly designed floor plan makes excellent use of space, with an additional flex space in the primary suite for a desk or reading area and a second bedroom with full bath attached, ideal for welcoming guests. Storage abounds with a main level laundry space and pull out shelf as well as extra storage space in the garage. Impeccably maintained with new flooring and paint in 2024, all this home is missing is you!This home has had a pre-listing inspection for confidence and transparency.

Address: 6535 SUMMERLINN WAY WEST LINN OR 97068

MLS Logo  Listing Courtesy of Cascade Hasson Sotheby's International Realty 503-420-8650

Listing Photos


Community: MADISON HEIGHTS ... Listing 3 of 4
First -- Next -- Previous -- Last

Logo for Fair Housing ActThe Fair Housing Act prohibits discrimination in housing based on color, race, religion, national origin, sex, familial status, or disability.

Some properties which appear for sale on this web site may subsequently have sold or may no longer be available.

The content relating to real estate for sale on this web site comes in part from the IDX program of the RMLS™ of Portland, Oregon. All real estate listings are marked with the RMLS™ logo, and detailed information about these properties includes the names of the listing brokers.

Listing content is © 2026 RMLS™, Portland, Oregon.

RMLS Logo

Information Deemed Reliable But Not Guaranteed. The information being provided is for consumer's personal, non-commercial use and may not be used for any purpose other than to identify prospective properties consumers may be interested in purchasing. This information, including square footage, while not guaranteed, has been acquired from sources believed to be reliable.

Last Updated: 2026-02-19 04:12:00