Keller Williams Realty - 503-664-9825

Community: THE FONTAINE ... Listing 4 of 6
First -- Next -- Previous -- Last

MLS: 525302011     $310,000     2 Beds /1 Baths

MLS #:525302011
Status:ACTIVE
List Price:$310,000
Price SQFT:$319
City: PORTLAND
Beds:2
Baths:1
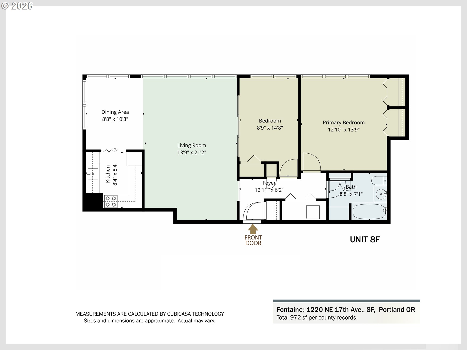
SqFt:972
Year:1963
Zip:97232

 

Listing Remarks

Soak up the mid-century cool in this upper-level corner condo that serves just the right amount of retro flair. Start your mornings stretched out on the custom banquette, sipping a glass of Tang or Ovaltine while you take in unobstructed city views—very Jetsons, very chic. Your vinyl collection deserves a spotlight, and the built-in cabinet designed for a turntable delivers, spinning good vibes all day long.Warm cork flooring sets the tone, perfectly complementing the original wood trim, kitchen cabinets, and classic sliding doors. The second bedroom is just the right size for a home office, nursery, or creative retreat. Step into the bright, cheerful kitchen and you’ll feel instant throwback energy—cue the go-go boots. You might even be inspired to whip up a Jello dessert that would make grandma proud. A brand-new, never-used range and refrigerator pair effortlessly with a newer dishwasher for modern convenience with vintage charm.When summer heats up, keep things cool with two efficient heat-pump mini-splits, paired with roller shades to help beat the heat. Still craving more retro? Head down the hall to the bathroom, where pink and silver foil wallpaper meets original 1963 tile in all its atomic-age glory. And yes—it wouldn’t be a true trip down memory lane without the built-in chrome revolving cabinet, cleverly hiding your toothbrush, soap, and water cup.The layout is as flexible as your imagination: no load-bearing walls means you can open up the kitchen or second bedroom for easy, open-concept entertaining. Take the party upstairs to the sky-high roof deck with 360-degree city and mountain views—Mt. Hood, Mt. St. Helens, and Mt. Adams all make an appearance. Well-maintained community spaces are also available to reserve for private gatherings.Round it out with deeded underground parking to keep your car dry and warm, plus a deeded storage locker. The Fontaine is a welcoming, well-cared-for community where homeowners take pride in their building.

Address: 1220 NE 17TH AVE 8F PORTLAND OR 97232

MLS Logo  Listing Courtesy of Windermere Realty Trust 503-284-7755

Listing Photos


Community: THE FONTAINE ... Listing 4 of 6
First -- Next -- Previous -- Last

Logo for Fair Housing ActThe Fair Housing Act prohibits discrimination in housing based on color, race, religion, national origin, sex, familial status, or disability.

Some properties which appear for sale on this web site may subsequently have sold or may no longer be available.

The content relating to real estate for sale on this web site comes in part from the IDX program of the RMLS™ of Portland, Oregon. All real estate listings are marked with the RMLS™ logo, and detailed information about these properties includes the names of the listing brokers.

Listing content is © 2026 RMLS™, Portland, Oregon.

RMLS Logo

Information Deemed Reliable But Not Guaranteed. The information being provided is for consumer's personal, non-commercial use and may not be used for any purpose other than to identify prospective properties consumers may be interested in purchasing. This information, including square footage, while not guaranteed, has been acquired from sources believed to be reliable.

Last Updated: 2026-03-15 16:40:18