Keller Williams Realty - 503-664-9825
SOLD! MLS: 746592126 $210,000
1 Bedroom with 1 Bath5488 SW ALGER AVE I-2
BEAVERTON OR 97005MLS: 746592126
Status: SOLD
Closed On: 2025-08-04
Sold Price: $210,000
Sold Price per SqFt: $333
Square Footage: 6301 Bedroom
1 Bath
Year Built: 1977
Zip Code: 97005
Listing Remarks
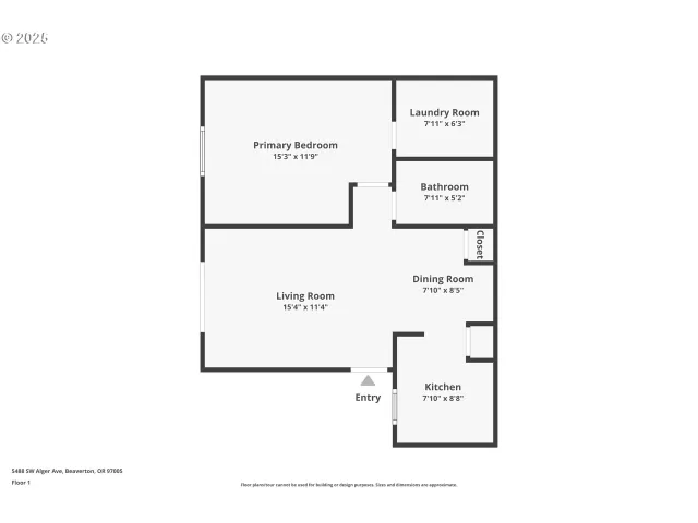
This charming upper-level 1-bed, 1-bath condo with a deeded parking space and laminate plank flooring throughout, offers a comfortable, low-maintenance lifestyle in a convenient Beaverton location. Step through the covered front entrance into a bright living space featuring a sliding glass door that opens to your private patio—perfect for morning coffee or relaxing evenings. Adjacent to the living space, the dining area flows into a well-appointed kitchen with a pantry for extra storage. The spacious primary bedroom includes a walk-in closet and a stackable washer and dryer for added convenience. The full bathroom features a tiled floor and clean, modern finishes. A mini-split system provides efficient heating and cooling, ensuring year-round comfort in every season. Enjoy the excellent walkability to the Beaverton Saturday Market, restaurants, stores, and many more local amenities just moments away. Whether you're a first-time buyer, downsizing, or seeking a great investment opportunity, this condo checks all the boxes for simplicity, function, and location.
Address: 5488 SW ALGER AVE I-2 BEAVERTON OR 97005
Listing Courtesy of Opt 503-464-6036
Condo Mania Agent
Michele DesCombes
Keller Williams Professionals
Real Estate Agent - #201204624
Phone: 503-974-1444
Request More Information
Listing Details
STATUS: Closed LISTING CONTRACT DATE: 2025-05-23 CLOSE DATE: 2025-08-04 BEDROOMS: 1 BATHROOMS FULL: 1 BUILDING AREA TOTAL: 630 YEAR BUILT: 1977 TAXES: $1,494 HOA FEES FREQUENCY: Monthly HOA FEES: $412 HOA AMENITIES: Commons, ExteriorMaintenance, Insurance, Laundry, Pool, RecreationFacilities, Sewer, Trash APPLIANCES INCLUDED: Dishwasher, FreeStandingRange, FreeStandingRefrigerator, StainlessSteelAppliance ARCHITECTURAL STYLE: Other HEATING: Other COOLING: MiniSplit INTERIOR FEATURES: LaminateFlooring, Laundry, WalltoWallCarpet, WasherDryer LEGAL DESCRIPTION: SEQUOIA PARK, A CONDO, BLOCK I, LOT 2 LOT FEATURES: Commons, Level, Trees # GARAGE SPACES: 0 PARKING FEATURES: OffStreet PROPERTY TYPE: Residential PROPERTY SUB TYPE: Condominium ROOF: Composition STORIES TOTAL: 2 LISTING AGENT: OMAR RAMIREZ LISTING OFFICE: OPT LISTING CONTACT: 503-464-6036
Property Location: 5488 SW ALGER AVE I-2 BEAVERTON OR 97005
This Listing
Active Listings Nearby
You Might Also Be Interested In...
The Fair Housing Act prohibits discrimination in housing based on color, race, religion, national origin, sex, familial status, or disability.
Some properties which appear for sale on this web site may subsequently have sold or may no longer be available.
The content relating to real estate for sale on this web site comes in part from the IDX program of the RMLS™ of Portland, Oregon. All real estate listings are marked with the RMLS™ logo, and detailed information about these properties includes the names of the listing brokers.
Listing content is © 2026 RMLS™, Portland, Oregon.
Information Deemed Reliable But Not Guaranteed. The information being provided is for consumer's personal, non-commercial use and may not be used for any purpose other than to identify prospective properties consumers may be interested in purchasing. This information, including square footage, while not guaranteed, has been acquired from sources believed to be reliable.
Last Updated: 2026-04-30 19:40:01
Portland Condo Mania






