Keller Williams Realty - 503-664-9825
MLS: 576346198 $384,900
3 Bedrooms with 3 Baths16060 SW AUDUBON ST 104
BEAVERTON OR 97003MLS: 576346198
Status: PENDING
List Price: $384,900
Price per SQFT: $216
Square Footage: 17813 Bedrooms
3 Baths
Year Built: 2001
Zip Code: 97003
Listing Remarks
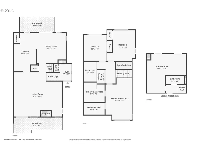
Tired of the typical beige walls and same old finishes? Step into this Tuscan inspired sanctuary. Walls drenched in warm colors, decorative light fixtures, clay tiles and a secret wine room. Feels like you are on vacation! This end unit townhouse offers a functional layout across three floors. The main floor is filled with light from the south facing living room windows and tall ceilings. Balconies on both sides to enjoy when the weather is nice and a cosy fireplace for the winter months. Built-in shelves and cabinets in the living room to display your treasures. Upstairs you will find three bedrooms, including a primary suite with an updated ensuite bathroom and a “California Closets” walk-in closet. Two more bedrooms, hall bathroom and laundry closet with cabinets and a pull out clothes rack round out the top floor. Here comes the fun surprise! On the lower level there is an amazing “secret” room with a hidden door. Open the door and pass through into a Tuscan wine room. Brick and dark wood paneled walls, warm colors, coffered wood ceiling and metal wine racks create an incredible experience. Wine tasting, game nights, reading room or whatever you imagine for this space. Next to the secret room is a guest bathroom decorated in the same theme including an artisan copper sink. This townhouse is perfect for someone wanting something unique and interesting but who also wants functionality and a central location close to Nike, Intel, shopping and restaurants. Easy MAX access and even better, the large Tualatin Hills Nature park with walking trails galore next to the complex. Roof was recently replaced and decks have been resurfaced. Last but not least, the townhouse includes an attached, oversized double garage with multiple storage shelves, a workbench with overhead lighting and pre-wired for two electric vehicles!
Address: 16060 SW AUDUBON ST 104 BEAVERTON OR 97003
Listing Courtesy of Opt 503-816-4027
Condo Mania Agent
Michele DesCombes
Keller Williams Professionals
Real Estate Agent - #201204624
Phone: 503-974-1444
Request More Information
Listing Details
STATUS: Pending LISTING CONTRACT DATE: 2025-08-08 BEDROOMS: 3 BATHROOMS FULL: 2 BUILDING AREA TOTAL: 1781 YEAR BUILT: 2001 TAXES: $5,322 HOA FEES FREQUENCY: Monthly HOA FEES: $435 HOA AMENITIES: Commons, ExteriorMaintenance, Insurance APPLIANCES INCLUDED: Dishwasher, FreeStandingRange, FreeStandingRefrigerator, Microwave, Pantry, StainlessSteelAppliance ARCHITECTURAL STYLE: Townhouse EXTERIOR FEATURES: Deck, Patio FIREPLACE: Gas HEATING: ForcedAir COOLING: CentralAir INTERIOR FEATURES: BambooFloor, HighCeilings, Laundry, WalltoWallCarpet, WasherDryer, WoodFloors LEGAL DESCRIPTION: VILLAGE CONDO STAGE 2, LOT 6-4 LOT FEATURES: Commons # GARAGE SPACES: 2 PARKING FEATURES: EVReady, OffStreet PROPERTY TYPE: Residential PROPERTY SUB TYPE: Condominium ROOF: Composition STORIES TOTAL: 3 LISTING AGENT: ROBIN MALCOMSON LISTING OFFICE: OPT LISTING CONTACT: 503-816-4027
Estimated Monthly Payments
List Price: $384,900 20% Down Payment: $76,980 Loan Amount: $307,920 Loan Type: 30 Year Fixed Interest Rate: 6.5 % Monthly Payment: $1,946 Estimate does not include taxes, fees, insurance.
Request More Information
Property Location: 16060 SW AUDUBON ST 104 BEAVERTON OR 97003
This Listing
Active Listings Nearby
Condo Mania Agent
Angela Stevens
Keller Williams Professionals
Principal Real Estate Broker- #201003076
Phone: 503-974-1444
You Might Also Be Interested In...
The Fair Housing Act prohibits discrimination in housing based on color, race, religion, national origin, sex, familial status, or disability.
Some properties which appear for sale on this web site may subsequently have sold or may no longer be available.
The content relating to real estate for sale on this web site comes in part from the IDX program of the RMLS™ of Portland, Oregon. All real estate listings are marked with the RMLS™ logo, and detailed information about these properties includes the names of the listing brokers.
Listing content is © 2025 RMLS™, Portland, Oregon.
Information Deemed Reliable But Not Guaranteed. The information being provided is for consumer's personal, non-commercial use and may not be used for any purpose other than to identify prospective properties consumers may be interested in purchasing. This information, including square footage, while not guaranteed, has been acquired from sources believed to be reliable.
Last Updated: 2025-11-25 19:40:51
Portland Condo Mania







