Keller Williams Realty - 503-664-9825
SOLD! MLS: 508699030 $318,000
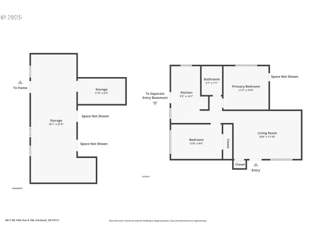
2 Bedrooms with 1 Bath5811 NE 10TH AVE 106
PORTLAND OR 97211MLS: 508699030
Status: SOLD
Closed On: 2025-07-31
Sold Price: $318,000
Sold Price per SqFt: $466
Square Footage: 6832 Bedrooms
1 Bath
Year Built: 1953
Zip Code: 97211
Listing Remarks
Tucked away in the King/Alberta Arts District, this adorable 2-bedroom, 1-bath residence offers comfort, character, and thoughtful updates throughout. Inside, you'll find real wood floors, a cozy living room with a gas fireplace, and a bright kitchen featuring stainless steel appliances and a cheerful dining nook. Included are two well-sized bedrooms and a full bath, making for an easy, efficient layout. Step out to the back patio, complete withprivacy plants and a gated entrance—perfect for low-maintenance outdoor relaxing or container gardening. The common grounds include a beautiful courtyard with a variety of plants and flowers along with a space to host larger gatherings. This condo also includes a private storage space. Full of charm and move-in ready, this sweet Portland home is a great fit for first-time buyers, downsizers, or anyone looking for a cozy space with character. [Home Energy Score = 8. HES Report at https://rpt.greenbuildingregistry.com/hes/OR10239564]
Address: 5811 NE 10TH AVE 106 PORTLAND OR 97211
Listing Courtesy of Opt 360-536-1790
Condo Mania Agent
Michele DesCombes
Keller Williams Professionals
Real Estate Agent - #201204624
Phone: 503-974-1444
Request More Information
Listing Details
STATUS: Closed LISTING CONTRACT DATE: 2025-07-08 CLOSE DATE: 2025-07-31 BEDROOMS: 2 BATHROOMS FULL: 1 BUILDING AREA TOTAL: 683 YEAR BUILT: 1953 TAXES: $3,900 HOA FEES FREQUENCY: Monthly HOA FEES: $272 HOA AMENITIES: AllLandscaping, Commons, ExteriorMaintenance, Gated, Management, Sewer, Trash, Water APPLIANCES INCLUDED: Dishwasher, FreeStandingGasRange ARCHITECTURAL STYLE: CommonWall, Ranch EXTERIOR FEATURES: Fenced, Garden, Patio, Yard FIREPLACE: Gas, Stove HEATING: ForcedAir90 INTERIOR FEATURES: HardwoodFloors, TileFloor LEGAL DESCRIPTION: BEDROCK COURT CONDOMINIUMS, LOT 106 LOT FEATURES: Gated, Level # GARAGE SPACES: 0 PARKING FEATURES: OnStreet PROPERTY TYPE: Residential PROPERTY SUB TYPE: Condominium ROOF: Composition STORIES TOTAL: 1 LISTING AGENT: AARON PONTIUS LISTING OFFICE: OPT LISTING CONTACT: 360-536-1790
Property Location: 5811 NE 10TH AVE 106 PORTLAND OR 97211
This Listing
Active Listings Nearby
You Might Also Be Interested In...
Region: NORTHEAST PORTLAND Condos
The Fair Housing Act prohibits discrimination in housing based on color, race, religion, national origin, sex, familial status, or disability.
Some properties which appear for sale on this web site may subsequently have sold or may no longer be available.
The content relating to real estate for sale on this web site comes in part from the IDX program of the RMLS™ of Portland, Oregon. All real estate listings are marked with the RMLS™ logo, and detailed information about these properties includes the names of the listing brokers.
Listing content is © 2026 RMLS™, Portland, Oregon.
Information Deemed Reliable But Not Guaranteed. The information being provided is for consumer's personal, non-commercial use and may not be used for any purpose other than to identify prospective properties consumers may be interested in purchasing. This information, including square footage, while not guaranteed, has been acquired from sources believed to be reliable.
Last Updated: 2026-05-07 13:40:15
Portland Condo Mania






