Keller Williams Realty - 503-664-9825
MLS: 451697515 $339,000
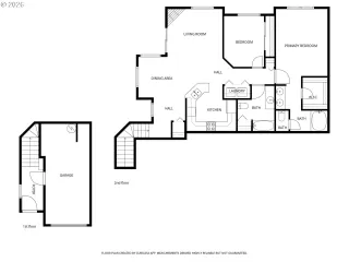
2 Bedrooms with 2 Baths14800 SW SANDHILL LOOP 201
BEAVERTON OR 97007MLS: 451697515
Status: ACTIVE
List Price: $339,000
Price per SQFT: $310
Square Footage: 10922 Bedrooms
2 Baths
Year Built: 2005
Zip Code: 97007
Listing Remarks
Corner upper-level unit with high ceilings throughout and an open floor plan. The living area features large floor-to-ceiling windows that provides an abundance of natural light, along with a gas fireplace - creating the perfect setting for NW living. Other amenities includes an eating bar and washer/dryer hookups are available, along with a large open deck. The primary bedroom hallmarks a walk-in closet, and the home is equipped with air conditioning for year-round comfort. An attached single-car garage with extra depth provides additional storage space. Located in a clean, quiet community near Progress Ridge shopping, dining, and the lake, this property offers convenient access to everyday amenities. This is a must see!!
Address: 14800 SW SANDHILL LOOP 201 BEAVERTON OR 97007
Listing Courtesy of Premiere Property Group, LLC 503-670-9000
Community: PROGRESS RIDGE ... Listing 6 of 13
First -- Next -- Previous -- Last
Condo Mania Agent
Michele DesCombes
Keller Williams Professionals
Real Estate Agent - #201204624
Phone: 503-974-1444
Request More Information
Listing Details
STATUS: Active LISTING CONTRACT DATE: 2026-03-04 BEDROOMS: 2 BATHROOMS FULL: 2 BUILDING AREA TOTAL: 1092 YEAR BUILT: 2005 TAXES: $4,228 HOA FEES FREQUENCY: Monthly HOA FEES: $450 HOA AMENITIES: Commons, ExteriorMaintenance, Insurance, Management APPLIANCES INCLUDED: Dishwasher, Disposal, FreeStandingRange, FreeStandingRefrigerator, Microwave, Pantry ARCHITECTURAL STYLE: Traditional EXTERIOR FEATURES: Deck FIREPLACE: Gas HEATING: Baseboard COOLING: WallUnit INTERIOR FEATURES: CeilingFan, GarageDoorOpener, HighCeilings, Laundry, WalltoWallCarpet LEGAL DESCRIPTION: COURTYARD AT PROGRESS RIDGE CONDO, SUPP NO. 5: ANNEX STG 6, LOT 23 LOT FEATURES: Level # GARAGE SPACES: 1 PROPERTY TYPE: Residential PROPERTY SUB TYPE: Condominium ROOF: Composition STORIES TOTAL: 2 LISTING AGENT: MICHAEL DE HETRE LISTING OFFICE: PREMIERE PROPERTY GROUP, LLC
Estimated Monthly Payments
List Price: $339,000 20% Down Payment: $67,800 Loan Amount: $271,200 Loan Type: 30 Year Fixed Interest Rate: 6.5 % Monthly Payment: $1,714 Estimate does not include taxes, fees, insurance.
Request More Information
Property Location: 14800 SW SANDHILL LOOP 201 BEAVERTON OR 97007
This Listing
Active Listings Nearby
Condo Mania Agent
Angela Stevens
Keller Williams Professionals
Principal Real Estate Broker- #201003076
Phone: 503-974-1444
You Might Also Be Interested In...
Community: PROGRESS RIDGE ... Listing 6 of 13
First -- Next -- Previous -- Last
The Fair Housing Act prohibits discrimination in housing based on color, race, religion, national origin, sex, familial status, or disability.
Some properties which appear for sale on this web site may subsequently have sold or may no longer be available.
The content relating to real estate for sale on this web site comes in part from the IDX program of the RMLS™ of Portland, Oregon. All real estate listings are marked with the RMLS™ logo, and detailed information about these properties includes the names of the listing brokers.
Listing content is © 2026 RMLS™, Portland, Oregon.
Information Deemed Reliable But Not Guaranteed. The information being provided is for consumer's personal, non-commercial use and may not be used for any purpose other than to identify prospective properties consumers may be interested in purchasing. This information, including square footage, while not guaranteed, has been acquired from sources believed to be reliable.
Last Updated: 2026-04-18 16:40:59
Portland Condo Mania







