Keller Williams Realty - 503-664-9825
MLS: 356790099 $1,299,000
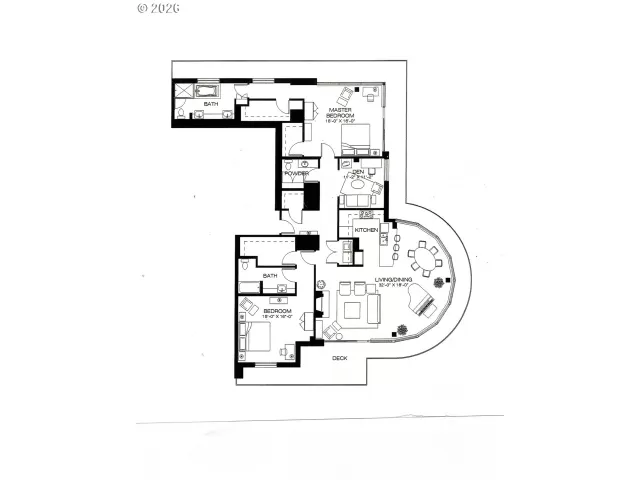
2 Bedrooms with 3 Baths1133 NW 11TH AVE 701
PORTLAND OR 97209MLS: 356790099
Status: ACTIVE
List Price: $1,299,000
Price per SQFT: $619
Square Footage: 20972 Bedrooms
3 Baths
Year Built: 2004
Zip Code: 97209
Listing Remarks
Experience elevated city living in this meticulously maintained corner residence located in the heart of Portland’s sought-after Pearl District. Dramatic floor-to-ceiling windows showcase breathtaking 270-degree views overlooking Tanner Springs Park, with stunning vistas of Mt. Hood, iconic city bridges, and the river. An expansive wraparound deck seamlessly extends the living space, offering an ideal setting for entertaining or unwinding while taking in the ever-changing cityscape.The thoughtfully designed floor plan features two spacious ensuite primary bedrooms, each with walk-in closets outfitted with California Closets for exceptional organization and style. A versatile den provides the perfect space for a home office, media room, or guest retreat. Marble finishes in the bathrooms create a refined, spa-like atmosphere, while custom lighting throughout enhances the home’s modern elegance. Abundant storage and meticulous upkeep are evident at every turn.Set in the vibrant Pearl District, this residence offers unparalleled access to renowned dining, boutique shopping, art galleries, parks, and the city’s best cultural amenities—all just steps from your front door. A rare opportunity to enjoy sophisticated urban living, premier walkability, and truly remarkable views in one exceptional home.
Address: 1133 NW 11TH AVE 701 PORTLAND OR 97209
Listing Courtesy of Christie's International Real Estate Evergreen 503-334-1473
Community: BRIDGEPORT ... Listing 1 of 9
First -- Next -- Previous -- Last
Condo Mania Agent
Michele DesCombes
Keller Williams Professionals
Real Estate Agent - #201204624
Phone: 503-974-1444
Request More Information
Listing Details
STATUS: Active LISTING CONTRACT DATE: 2026-02-06 BEDROOMS: 2 BATHROOMS FULL: 2 BUILDING AREA TOTAL: 2097 YEAR BUILT: 2004 TAXES: $22,276 HOA FEES FREQUENCY: Monthly HOA FEES: $1,913 HOA AMENITIES: Commons, Gas, Management, Sewer, Trash, Water APPLIANCES INCLUDED: BuiltinOven, Cooktop, Dishwasher, Disposal, FreeStandingRefrigerator, GasAppliances, Granite, StainlessSteelAppliance ARCHITECTURAL STYLE: Contemporary EXTERIOR FEATURES: Deck, GasHookup FIREPLACE: Gas HEATING: ForcedAir COOLING: CentralAir INTERIOR FEATURES: CeilingFan, Granite, JettedTub, WalltoWallCarpet, WoodFloors LEGAL DESCRIPTION: BRIDGEPORT CONDOMINIUMS, LOT 701 LOT FEATURES: Commons, CornerLot, Level, StreetCar # GARAGE SPACES: 2 PARKING FEATURES: Deeded PROPERTY TYPE: Residential PROPERTY SUB TYPE: Condominium ROOF: Flat STORIES TOTAL: 7 LISTING AGENT: ANDREW PIENOVI LISTING OFFICE: CHRISTIE'S INTERNATIONAL REAL ESTATE EVERGREEN
Estimated Monthly Payments
List Price: $1,299,000 20% Down Payment: $259,800 Loan Amount: $1,039,200 Loan Type: 30 Year Fixed Interest Rate: 6.5 % Monthly Payment: $6,568 Estimate does not include taxes, fees, insurance.
Request More Information
Property Location: 1133 NW 11TH AVE 701 PORTLAND OR 97209
This Listing
Active Listings Nearby
Condo Mania Agent
Angela Stevens
Keller Williams Professionals
Principal Real Estate Broker- #201003076
Phone: 503-974-1444
You Might Also Be Interested In...
Community: BRIDGEPORT ... Listing 1 of 9
First -- Next -- Previous -- Last
The Fair Housing Act prohibits discrimination in housing based on color, race, religion, national origin, sex, familial status, or disability.
Some properties which appear for sale on this web site may subsequently have sold or may no longer be available.
The content relating to real estate for sale on this web site comes in part from the IDX program of the RMLS™ of Portland, Oregon. All real estate listings are marked with the RMLS™ logo, and detailed information about these properties includes the names of the listing brokers.
Listing content is © 2026 RMLS™, Portland, Oregon.
Information Deemed Reliable But Not Guaranteed. The information being provided is for consumer's personal, non-commercial use and may not be used for any purpose other than to identify prospective properties consumers may be interested in purchasing. This information, including square footage, while not guaranteed, has been acquired from sources believed to be reliable.
Last Updated: 2026-03-23 16:40:50
Portland Condo Mania







