Keller Williams Realty - 503-664-9825
SOLD! MLS: 24458971 $449,500
2 Bedrooms with 2 Baths4834 NE PRESCOTT ST C
PORTLAND OR 97218MLS: 24458971
Status: SOLD
Closed On: 2024-04-09
Sold Price: $449,500
Sold Price per SqFt: $515
Square Footage: 8732 Bedrooms
2 Baths
Year Built: 2023
Zip Code: 97218
Listing Remarks
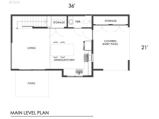
New construction modern home in stellar location convenient to Beaumont shops & restaurants! Built with uncompromised quality and true architectural design by Portland's premier infill cottage developer. 1 of 3 detached homes, each with an oversized fenced yard. Lives large with 2-story vaulted living room & spacious front entry covered patio. Slider opens to side patio for summertime entertaining. Loads of storage with large interior pantry & exterior storage closet for all your gear and gardening supplies. Great room plan. Chef's kitchen. 2 beds & study loft upstairs. Completely move-in-ready with included fridge, W/D, and full landscaping. All electric with mini-split heating and cooling and built Energy Star "Zero Energy Ready" standard. Total energy bill estimated @ just $47 per month! Live maintenance free with minimal monthly expenses, while enjoying all the benefits of a single family home. HES=10! Bike Score=95! SEE 3D TOUR! Seller & lender offering 3% credit towards rate buy down with preferred lender with full-price offer. [Home Energy Score = 10. HES Report at https://rpt.greenbuildingregistry.com/hes/OR10188249]
Address: 4834 NE PRESCOTT ST C PORTLAND OR 97218
Listing Courtesy of Keller Williams PDX Central 503-548-4848
Condo Mania Agent
Michele DesCombes
Keller Williams Professionals
Real Estate Agent - #201204624
Phone: 503-974-1444
Request More Information
Listing Details
STATUS: Closed LISTING CONTRACT DATE: 2024-01-05 CLOSE DATE: 2024-04-09 BEDROOMS: 2 BATHROOMS FULL: 1 BUILDING AREA TOTAL: 873 YEAR BUILT: 2023 HOA FEES FREQUENCY: Annually HOA FEES: $609 HOA AMENITIES: Insurance APPLIANCES INCLUDED: Cooktop, Dishwasher, Disposal, FreeStandingRange, FreeStandingRefrigerator, Microwave, PlumbedForIceMaker, Quartz, RangeHood, StainlessSteelAppliance, Tile ARCHITECTURAL STYLE: Stories2, Contemporary EXTERIOR FEATURES: CoveredPatio, Fenced, Patio, ToolShed, Yard HEATING: HeatPump, MiniSplit COOLING: HeatPump INTERIOR FEATURES: ConcreteFloor, HighCeilings, Laundry, Quartz, TileFloor, VaultedCeiling, WalltoWallCarpet LEGAL DESCRIPTION: UNIT NO. 3, PRESCOTT COTTAGES CONDOMINIUM LOT FEATURES: Level, Secluded # GARAGE SPACES: 0 PARKING FEATURES: OnStreet PROPERTY TYPE: Residential PROPERTY SUB TYPE: Condominium ROOF: Composition STORIES TOTAL: 2 LISTING AGENT: CHRIS DAWKINS LISTING OFFICE: KELLER WILLIAMS PDX CENTRAL
Property Location: 4834 NE PRESCOTT ST C PORTLAND OR 97218
This Listing
Active Listings Nearby
The Fair Housing Act prohibits discrimination in housing based on color, race, religion, national origin, sex, familial status, or disability.
Some properties which appear for sale on this web site may subsequently have sold or may no longer be available.
The content relating to real estate for sale on this web site comes in part from the IDX program of the RMLS™ of Portland, Oregon. All real estate listings are marked with the RMLS™ logo, and detailed information about these properties includes the names of the listing brokers.
Listing content is © 2026 RMLS™, Portland, Oregon.
Information Deemed Reliable But Not Guaranteed. The information being provided is for consumer's personal, non-commercial use and may not be used for any purpose other than to identify prospective properties consumers may be interested in purchasing. This information, including square footage, while not guaranteed, has been acquired from sources believed to be reliable.
Last Updated: 2026-04-01 10:40:53
Portland Condo Mania






