Keller Williams Realty - 503-664-9825
SOLD! MLS: 24000995 $625,000
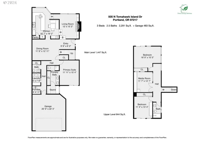
3 Bedrooms with 3 Baths505 N TOMAHAWK ISLAND DR
PORTLAND OR 97217MLS: 24000995
Status: SOLD
Closed On: 2025-07-03
Sold Price: $625,000
Sold Price per SqFt: $273
Square Footage: 22913 Bedrooms
3 Baths
Year Built: 1980
Zip Code: 97217
Listing Remarks
Island Living - waterfront property with amazing views of the City lights, Hayden Bay and Marina's. The perfect location nestled on the bay with easy access to the Columbia River. Private marina just outside your door. Boat slips available for purchase. This home has never been on the market, one owner and totally remodeled with permits. A true WOW factor when you walk in door and see the views and amenities. Great room is vaulted with wall to wall windows, built-ins along side of the gas fireplace open to the kitchen. Step out the door to enjoy the large deck with your morning coffee. Kitchen with nook trimmed in teak wood, eating bar, pantry, wood cabinets, stainless appliances. Formal dinning room with coffered ceilings and custom lighting. An amazing main floor primary suite with sauna, private court yard, tiled with built-in hot tub. Your private sanctuary. Laundry, half bath and additional storage on the main floor. Upper level has a large office/bedroom with south facing patio. Media room with French doors. Spacious guest bedroom with balcony overlooking the bay. Two car garage with huge amounts of storage, built-in cabinets etc. Central Air, Sprinkler's, Storm Door, Ask agent about the new windows and sliders that have just been installed. Enjoy the Vancouver waterfront, farmers market, music in the park just minutes away. Shopping on the island, close to the airport, yacht clubs and golf. Time for a move - come to Portland's Best Kept Secret! [Home Energy Score = 6. HES Report at https://rpt.greenbuildingregistry.com/hes/OR10232722]
Address: 505 N TOMAHAWK ISLAND DR PORTLAND OR 97217
Listing Courtesy of RE/MAX Equity Group 503-626-4600
Condo Mania Agent
Michele DesCombes
Keller Williams Professionals
Real Estate Agent - #201204624
Phone: 503-974-1444
Request More Information
Listing Details
STATUS: Closed LISTING CONTRACT DATE: 2024-09-11 CLOSE DATE: 2025-07-03 BEDROOMS: 3 BATHROOMS FULL: 2 BUILDING AREA TOTAL: 2291 YEAR BUILT: 1980 TAXES: $10,741 HOA FEES FREQUENCY: Monthly HOA FEES: $628 HOA AMENITIES: Commons, ExteriorMaintenance, MaintenanceGrounds, Pool, Sewer, TennisCourt, Trash, Water APPLIANCES INCLUDED: Cooktop, Dishwasher, Disposal, Island, Microwave, Pantry, StainlessSteelAppliance ARCHITECTURAL STYLE: Stories2, Contemporary EXTERIOR FEATURES: BuiltinHotTub, Deck, Fenced, GasHookup, Patio, Porch, Sauna, SecurityLights, Sprinkler, Yard FIREPLACE: Gas HEATING: ForcedAir COOLING: CentralAir, HeatPump INTERIOR FEATURES: GarageDoorOpener, HighCeilings, HookupAvailable, Laundry, SlateFlooring, Sprinkler, VaultedCeiling, WalltoWallCarpet, WasherDryer LEGAL DESCRIPTION: HAYDEN BAY CONDOMINIUM, LOT 10 LOT FEATURES: Commons, Level, Private, Seasonal # GARAGE SPACES: 2 PARKING FEATURES: Driveway, OffStreet PROPERTY TYPE: Residential PROPERTY SUB TYPE: Condominium ROOF: Flat STORIES TOTAL: 2 LISTING AGENT: SUSAN GERLACH-COLTON LISTING OFFICE: RE/MAX EQUITY GROUP
Property Location: 505 N TOMAHAWK ISLAND DR PORTLAND OR 97217
This Listing
Active Listings Nearby
You Might Also Be Interested In...
Region: NORTH PORTLAND Condos
The Fair Housing Act prohibits discrimination in housing based on color, race, religion, national origin, sex, familial status, or disability.
Some properties which appear for sale on this web site may subsequently have sold or may no longer be available.
The content relating to real estate for sale on this web site comes in part from the IDX program of the RMLS™ of Portland, Oregon. All real estate listings are marked with the RMLS™ logo, and detailed information about these properties includes the names of the listing brokers.
Listing content is © 2026 RMLS™, Portland, Oregon.
Information Deemed Reliable But Not Guaranteed. The information being provided is for consumer's personal, non-commercial use and may not be used for any purpose other than to identify prospective properties consumers may be interested in purchasing. This information, including square footage, while not guaranteed, has been acquired from sources believed to be reliable.
Last Updated: 2026-04-29 19:40:06
Portland Condo Mania






