Keller Williams Realty - 503-664-9825
SOLD! MLS: 23482898 $700,000
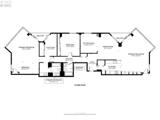
3 Bedrooms with 2 Baths2245 SW PARK PL 9A
PORTLAND OR 97205MLS: 23482898
Status: SOLD
Closed On: 2024-02-21
Sold Price: $700,000
Sold Price per SqFt: $344
Square Footage: 20363 Bedrooms
2 Baths
Year Built: 1983
Zip Code: 97205
Listing Remarks
Magnificent Park Place Tower penthouse located in the heart of the designated King's Hill historic district in Southwest Portland. This one-of-a-kind, elegant ninth floor condo home is comfortably spacious, boasting spectacular sweeping city and mountain views. With only two penthouses on the ninth floor, it allows for privacy and an unobstructed panoramic view stretching from the West Hills through downtown to the Eastside and Mt Hood. Private and secure keyed elevator entry to the ninth floor. The remodeled kitchen includes attractive white quartz countertops, a beautifully made custom range hood, lovely counter to ceiling white subway tiled backsplash above the range, new appliances, Fisher Paykel refrigerator, and pantry with washer and dryer. The south wall of the dining room is comprised of handsome, floor-to-ceiling, built-in cabinets for extra storage. The cozy, yet open sitting area could work well as a TV room, or library. There are two decks: one off the living area and the other off the primary bedroom. The generously sized en suite primary bedroom entails a large walk-in closet, dressing room, an attached room for a possible office, nursery, or 3rd bedroom. Step outside the lobby door and explore and enjoy this unique neighborhood and its surrounding amenities such as Zupan's, Ringside Steakhouse, MAC Club, Providence Park, Washington Park, NW 23rd St and NW 21st St shops, pubs and restaurants. Two deeded, gated and secure parking spaces and one oversized (12x12) storage space with two doors in proximity to the lobby & elevator. Well-managed & funded HOA with rental cap. High efficiency forced air heating & air conditioning. This gem of a home must be seen in person to appreciate its spectacular views, location & spaciousness. The large, open living area has been freshly painted & carpeted. Great urban experience with a Walk Score of 94 (Walker's Paradise), Transit Score 73 (Excellent Transit), and a Bike Score of 76 (Very Bikeable). MOTIVATED SELLERS!
Address: 2245 SW PARK PL 9A PORTLAND OR 97205
Listing Courtesy of MORE Realty 503-353-6673
Condo Mania Agent
Michele DesCombes
Keller Williams Professionals
Real Estate Agent - #201204624
Phone: 503-974-1444
Request More Information
Listing Details
STATUS: Closed LISTING CONTRACT DATE: 2023-06-30 CLOSE DATE: 2024-02-21 BEDROOMS: 3 BATHROOMS FULL: 2 BUILDING AREA TOTAL: 2036 YEAR BUILT: 1983 TAXES: $12,391 HOA FEES FREQUENCY: Monthly HOA FEES: $1,473 HOA AMENITIES: Commons, ExteriorMaintenance, Insurance, MaintenanceGrounds, Management, Sewer, SnowRemoval, Trash, Water APPLIANCES INCLUDED: Dishwasher, Disposal, FreeStandingRefrigerator, Pantry, Quartz, RangeHood ARCHITECTURAL STYLE: CommonWall, Contemporary EXTERIOR FEATURES: Deck HEATING: ForcedAir COOLING: CentralAir INTERIOR FEATURES: Elevator, GarageDoorOpener, HighSpeedInternet, LaminateFlooring, Laundry, Quartz, Sprinkler, TileFloor, WalltoWallCarpet LEGAL DESCRIPTION: PARK PLACE TOWER CONDOMINIUM, LOT 9A LOT FEATURES: Commons, CornerLot, OnBusline, Sloped # GARAGE SPACES: 1 PARKING FEATURES: Deeded, Secured PROPERTY TYPE: Residential PROPERTY SUB TYPE: Condominium ROOF: BuiltUp STORIES TOTAL: 10 LISTING AGENT: JETT BLACK LISTING OFFICE: MORE REALTY
Property Location: 2245 SW PARK PL 9A PORTLAND OR 97205
This Listing
Active Listings Nearby
You Might Also Be Interested In...
The Fair Housing Act prohibits discrimination in housing based on color, race, religion, national origin, sex, familial status, or disability.
Some properties which appear for sale on this web site may subsequently have sold or may no longer be available.
The content relating to real estate for sale on this web site comes in part from the IDX program of the RMLS™ of Portland, Oregon. All real estate listings are marked with the RMLS™ logo, and detailed information about these properties includes the names of the listing brokers.
Listing content is © 2026 RMLS™, Portland, Oregon.
Information Deemed Reliable But Not Guaranteed. The information being provided is for consumer's personal, non-commercial use and may not be used for any purpose other than to identify prospective properties consumers may be interested in purchasing. This information, including square footage, while not guaranteed, has been acquired from sources believed to be reliable.
Last Updated: 2026-05-10 10:40:43
Portland Condo Mania






