Keller Williams Realty - 503-664-9825
SOLD! MLS: 22427142 $335,000
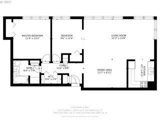
2 Bedrooms with 1 Bath1220 NE 17TH AVE 14B
PORTLAND OR 97232MLS: 22427142
Status: SOLD
Closed On: 2022-05-31
Sold Price: $335,000
Sold Price per SqFt: $337
Square Footage: 9942 Bedrooms
1 Bath
Year Built: 1963
Zip Code: 97232
Listing Remarks
Perfect opportunity to own views of the city, bridges & Mt St Helens from the 14th floor corner unit of the iconic Fontaine. This well-loved unit is ready for its next happy owner who has the vision to make this a showstopper! Secure building, coveted underground parking & storage unit. Newer windows. AC for hot summers! Interior walls can be moved as they are not load-bearing. Close to Broadway cafes, shopping, bars. Roof deck w/community room. Gated covered patio w/ grill, eating area,&garden
Address: 1220 NE 17TH AVE 14B PORTLAND OR 97232
Listing Courtesy of Windermere Realty Trust 503-284-7755
Condo Mania Agent
Michele DesCombes
Keller Williams Professionals
Real Estate Agent - #201204624
Phone: 503-974-1444
Request More Information
Listing Details
STATUS: Closed LISTING CONTRACT DATE: 2022-03-29 CLOSE DATE: 2022-05-31 BEDROOMS: 2 BATHROOMS FULL: 1 BUILDING AREA TOTAL: 994 YEAR BUILT: 1963 TAXES: $4,695 HOA FEES FREQUENCY: Monthly HOA FEES: $590 HOA AMENITIES: Commons, ExteriorMaintenance, Gated, Insurance, Laundry, MaintenanceGrounds, Management, PartyRoom, Sewer, Trash, Water APPLIANCES INCLUDED: Dishwasher, FreeStandingRange, FreeStandingRefrigerator ARCHITECTURAL STYLE: Other EXTERIOR FEATURES: CoveredPatio, Deck, Garden, RaisedBeds, SecurityLights, WaterFeature, Workshop HEATING: Baseboard COOLING: WallUnit INTERIOR FEATURES: CeilingFan, TileFloor, WalltoWallCarpet LEGAL DESCRIPTION: THE FONTAINE, A CONDOMINIUM, LOT 14B LOT FEATURES: Level # GARAGE SPACES: 1 PARKING FEATURES: Deeded, Secured PROPERTY TYPE: Residential PROPERTY SUB TYPE: Condominium LISTING AGENT: LULU BARKER LISTING OFFICE: WINDERMERE REALTY TRUST LISTING CONTACT: 503-866-8474
Property Location: 1220 NE 17TH AVE 14B PORTLAND OR 97232
This Listing
Active Listings Nearby
You Might Also Be Interested In...
The Fair Housing Act prohibits discrimination in housing based on color, race, religion, national origin, sex, familial status, or disability.
Some properties which appear for sale on this web site may subsequently have sold or may no longer be available.
The content relating to real estate for sale on this web site comes in part from the IDX program of the RMLS™ of Portland, Oregon. All real estate listings are marked with the RMLS™ logo, and detailed information about these properties includes the names of the listing brokers.
Listing content is © 2026 RMLS™, Portland, Oregon.
Information Deemed Reliable But Not Guaranteed. The information being provided is for consumer's personal, non-commercial use and may not be used for any purpose other than to identify prospective properties consumers may be interested in purchasing. This information, including square footage, while not guaranteed, has been acquired from sources believed to be reliable.
Last Updated: 2026-05-06 03:50:48
Portland Condo Mania






