Keller Williams Realty - 503-664-9825
SOLD! MLS: 21191831 $275,000
2 Bedrooms with 2 Baths1500 SW SKYLINE BLVD 5
PORTLAND OR 97221MLS: 21191831
Status: SOLD
Closed On: 2021-10-25
Sold Price: $275,000
Sold Price per SqFt: $248
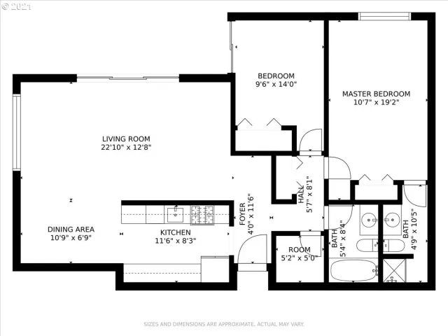
Square Footage: 11102 Bedrooms
2 Baths
Year Built: 1966
Zip Code: 97221
Listing Remarks
This peaceful condo is a rare opportunity to own a TRUE ONE LEVEL UNIT, including parking to front door. Beautiful new carpet, paint throughout gives you a lovely starting point for your new home. While most units have confined balconies, this special unit offers an XL patio bordered by trees for private outdoor space of your own. In-unit laundry and utility room for added convenience, also a large storage locker and bike room downstairs for overflow. Dedicated parking space (#5) included.
Address: 1500 SW SKYLINE BLVD 5 PORTLAND OR 97221
Listing Courtesy of Cascade Sothebys International Realty 503-420-8650
Condo Mania Agent
Michele DesCombes
Keller Williams Professionals
Real Estate Agent - #201204624
Phone: 503-974-1444
Request More Information
Listing Details
STATUS: Closed LISTING CONTRACT DATE: 2021-08-19 CLOSE DATE: 2021-10-25 BEDROOMS: 2 BATHROOMS FULL: 2 BUILDING AREA TOTAL: 1110 YEAR BUILT: 1966 TAXES: $4,200 HOA FEES FREQUENCY: Monthly HOA FEES: $498 HOA AMENITIES: ExteriorMaintenance, Insurance, MaintenanceGrounds, Management, Sewer, Trash, Water APPLIANCES INCLUDED: FreeStandingRange, Tile ARCHITECTURAL STYLE: Contemporary HEATING: WallFurnace COOLING: None INTERIOR FEATURES: Laundry LEGAL DESCRIPTION: SKYLINE CONDOMINIUM, LOT 5 # GARAGE SPACES: 0 PARKING FEATURES: OffStreet PROPERTY TYPE: Residential PROPERTY SUB TYPE: Condominium STORIES TOTAL: 4 LISTING AGENT: KRIS KACHIRISKY LISTING OFFICE: CASCADE SOTHEBYS INTERNATIONAL REALTY
Property Location: 1500 SW SKYLINE BLVD 5 PORTLAND OR 97221
This Listing
Active Listings Nearby
You Might Also Be Interested In...
The Fair Housing Act prohibits discrimination in housing based on color, race, religion, national origin, sex, familial status, or disability.
Some properties which appear for sale on this web site may subsequently have sold or may no longer be available.
The content relating to real estate for sale on this web site comes in part from the IDX program of the RMLS™ of Portland, Oregon. All real estate listings are marked with the RMLS™ logo, and detailed information about these properties includes the names of the listing brokers.
Listing content is © 2026 RMLS™, Portland, Oregon.
Information Deemed Reliable But Not Guaranteed. The information being provided is for consumer's personal, non-commercial use and may not be used for any purpose other than to identify prospective properties consumers may be interested in purchasing. This information, including square footage, while not guaranteed, has been acquired from sources believed to be reliable.
Last Updated: 2026-05-14 19:40:13
Portland Condo Mania






