Keller Williams Realty - 503-664-9825
SOLD! MLS: 18023351 $444,774
2 Bedrooms with 2 Baths4746 NE GOING ST
PORTLAND OR 97218MLS: 18023351
Status: SOLD
Closed On: 2020-11-12
Sold Price: $444,774
Sold Price per SqFt: $448
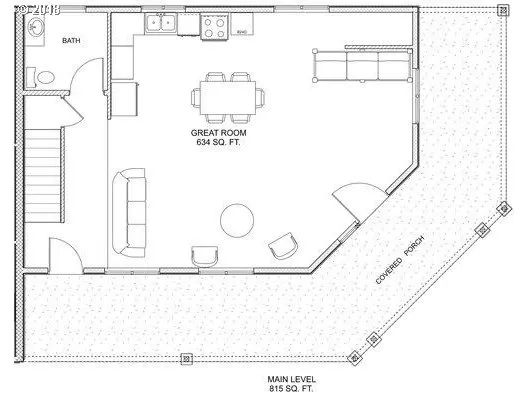
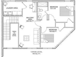
Square Footage: 9922 Bedrooms
2 Baths
Year Built: 2020
Zip Code: 97218
Listing Remarks
Live your values in a beautiful new community coming to Cully! The latest development by Eli Spevak of Orange Splot. These 2-4 bedroom, high-quality, energy smart homes w/in 1.4 acres w/ a shared garden + tree grove. Community house, guest rooms, sauna, solar-ready + bike barn. Heat pumps w/ AC! Homes are under construction; move-in early 2021. Early buyers choose from 4 interior finish packages, pick exterior colors, and get to meet one another. HOA docs at cullygreenpdx dot com
Address: 4746 NE GOING ST PORTLAND OR 97218
Listing Courtesy of Think Real Estate 503-847-2722
Condo Mania Agent
Michele DesCombes
Keller Williams Professionals
Real Estate Agent - #201204624
Phone: 503-974-1444
Request More Information
Listing Details
STATUS: Closed LISTING CONTRACT DATE: 2018-07-27 CLOSE DATE: 2020-11-12 BEDROOMS: 2 BATHROOMS FULL: 1 BUILDING AREA TOTAL: 992 YEAR BUILT: 2020 HOA FEES FREQUENCY: Monthly HOA FEES: $135 HOA AMENITIES: Insurance, Management, MeetingRoom, Sauna, Sewer, Taxes, Trash, Water APPLIANCES INCLUDED: Dishwasher, Disposal, ENERGYSTARQualifiedAppliances, FreeStandingRange, FreeStandingRefrigerator, Microwave, Quartz, StainlessSteelAppliance ARCHITECTURAL STYLE: Craftsman, Townhouse EXTERIOR FEATURES: CoveredPatio, Garden, GuestQuarters, OutdoorFireplace, Porch, RaisedBeds, Sauna, ToolShed, Workshop HEATING: ENERGYSTARQualifiedEquipment, ForcedAir90, MiniSplit COOLING: HeatPump INTERIOR FEATURES: DualFlushToilet, HardwoodFloors, Laundry, Quartz, ReclaimedMaterial, VinylFloor, WalltoWallCarpet LEGAL DESCRIPTION: SECTION 19 1N 2E, TL 12600 1. 39 ACRES LOT FEATURES: Level, Trees # GARAGE SPACES: 0 PARKING FEATURES: Deeded PROPERTY TYPE: Residential PROPERTY SUB TYPE: Condominium ROOF: Composition LISTING AGENT: AMBER TURNER LISTING OFFICE: THINK REAL ESTATE
Property Location: 4746 NE GOING ST PORTLAND OR 97218
This Listing
Active Listings Nearby
You Might Also Be Interested In...
The Fair Housing Act prohibits discrimination in housing based on color, race, religion, national origin, sex, familial status, or disability.
Some properties which appear for sale on this web site may subsequently have sold or may no longer be available.
The content relating to real estate for sale on this web site comes in part from the IDX program of the RMLS™ of Portland, Oregon. All real estate listings are marked with the RMLS™ logo, and detailed information about these properties includes the names of the listing brokers.
Listing content is © 2026 RMLS™, Portland, Oregon.
Information Deemed Reliable But Not Guaranteed. The information being provided is for consumer's personal, non-commercial use and may not be used for any purpose other than to identify prospective properties consumers may be interested in purchasing. This information, including square footage, while not guaranteed, has been acquired from sources believed to be reliable.
Last Updated: 2026-05-28 13:40:28
Portland Condo Mania






